Общая информация
Параметры объекта
- Тип жилья: новостройка
- Локация: Минск
- Площадь: 92 м²
- Стиль: эклектика
- Концепция: создание удобного и комфортного пространства для семьи с детьми
- Цветовая палитра: сочетание серых, бежевых и терракотовых оттенков с приглушёнными акцентами кораллового, бирюзового, синего и чёрного
Декоративная штукатурка — «Марат Ка». Радиатор отопления — Zehnder.
Плинтус — OracDecor. Краска на плинтусе — Benjamin Moore (Aura Bath & Spa).
Встроенный свет — Deltalight. Фасады — Domani. Электрика — Gira.
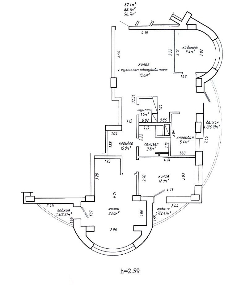
План квартиры
Кухня-столовая-гостиная
Семья долгое время жила в небольшой квартире, однако дети росли и пространства перестало хватать. Особенно остро эта проблема встала, когда младшие пошли в школу. Переезд в новую большую квартиру со свободной планировкой открыл интересные возможности, но одновременно поставил перед дизайнером непростую задачу грамотного распределения пространства.
Изначально хозяева мечтали о выразительном, насыщенном интерьере, однако опасались использовать активные цвета. Поэтому дизайнер выбрала мягкую, сбалансированную палитру, постепенно добавляя оттенки и акценты.
Обеденный стол изготовлен на заказ — Alfainox. Стулья — Calligaris.
Фасады для хозблока, тумба и полки — Domani. Розетки и выключатели — Gira.
Светильники — Arte Lamp. Бра — Deltalight.
Планировка новой квартиры имела ряд сложностей: два полукруглых эркера, а также инженерные коммуникации, расположенные почти в центре квартиры. Заказчики хотели получить отдельные комнаты для взрослых и детей, но при этом сохранить общее пространство для семейных встреч. В итоге прихожую, кухню, столовую и гостиную объединили в единый светлый объём, а спальни сделали изолированными.
Керамогранит на полу — Realonda. Плитка — Cevica.
Кухня изготовлена на заказ — Domani. Встроенный свет — Deltalight.
В приватных зонах преобладают спокойные голубовато-зелёные оттенки, а в общей части квартиры используются тёплые бежево-терракотовые тона, создающие атмосферу уюта и стабильности. Эту цветовую идею дополнили настенные росписи с изображением гор, которые визуально расширяют пространство гостиной и коридора. Кирпичная фактура напоминает крепостные стены среди заснеженных вершин, а серо-голубой плинтус проходит через все комнаты, словно горный ручей. Кухонная зона дополнена зелёными акцентами и плиткой с нежным цветочным узором, символизирующим альпийские луга.
Паркет — Karelia. Трековые светильники — Центрсвет.
Родительская спальня
В родительской спальне также использован приём визуальной перспективы. Обои с изображением туманного леса помогают сделать небольшую комнату более просторной. Из-за асимметричной формы эркера дизайнер применила зеркальные поверхности и выделила стену за изголовьем кровати дубовым шпоном, благодаря чему пространство стало более гармоничным и сбалансированным.
Обои — Dream Forest, Affresco. Шкаф-изголовье, кровать — Domani. Розетки и выключатели — Gira.
Детская комната для девочек
Детская комната для двух девочек оформлена в мягкой, спокойной гамме с преобладанием нежных голубых и серо-зелёных оттенков. Пространство продумано так, чтобы у каждой было своё личное место для отдыха, учёбы и творчества. У окна организована удобная рабочая зона с длинной столешницей и естественным светом. Вместительные стеллажи и системы хранения помогают поддерживать порядок, а текстиль и декоративные детали создают уютную, тёплую атмосферу.
Обои — Wonderworld и Pigment, Borastapeter. Мебель — Domani.
Настольные лампы — ИКЕА. Светильники — Ideallux.
Детская комната мальчика
В детской сына дизайнер создала образ крепости с панорамным видом на мир. Интерьер продуман таким образом, чтобы по мере взросления его можно было легко изменить, просто обновив отделку стен.
Обои — Mr Perswall. Мебель изготовлена на заказ. Светильник — Ideallux.
Санузел
Санузел оформлен в современном стиле с использованием спокойной серо-графитовой гаммы и тёплых древесных акцентов. Прозрачная душевая перегородка, лаконичная сантехника и встроенные системы хранения делают пространство функциональным и визуально лёгким. Мягкая подсветка подчёркивает фактуры материалов и создаёт уютную, расслабляющую атмосферу.
Раковина — Laufen. Тумба — Domani. Смеситель и аксессуары — Kludi.
Душевая стойка — Grohe. Душевое ограждение — Kermi. Душевой трап — Viega.
В результате получился функциональный, продуманный и визуально цельный интерьер, который отвечает потребностям большой семьи и создаёт комфортную среду для жизни, отдыха и общения.
Блог

Как продать квартиру в Беларуси без агентства и риэлтора: пошаговая инструкция

Как оценить ликвидность недвижимости для продажи или аренды

Отличия интерьерной фотосъёмки для риэлторов (агентов по недвижимости) и дизайнеров интерьера

Бесплатные онлайн-сервисы для оценки рыночной стоимости квартиры в Беларуси

Чек-лист уборки офиса для интерьерного фото

330 площадок для рекламы услуг дизайнера интерьеров и архитектора

Чек-лист уборки магазина для интерьерного фото

Ретушь фото недвижимости — кейс загородного дома

Чек-лист уборки квартиры для интерьерного фото

Чек-лист уборки салона красоты для интерьерного фото

Чек-лист уборки медицинского центра для интерьерного фото

Возможности Искусственного Интеллекта при редактировании фото интерьера

Чек-лист уборки гостиницы и отеля для фото интерьера

Чек-лист уборки ресторана для интерьерного фото



































